Tal & Kimmer’s House - “Emperor of Ocean Park”
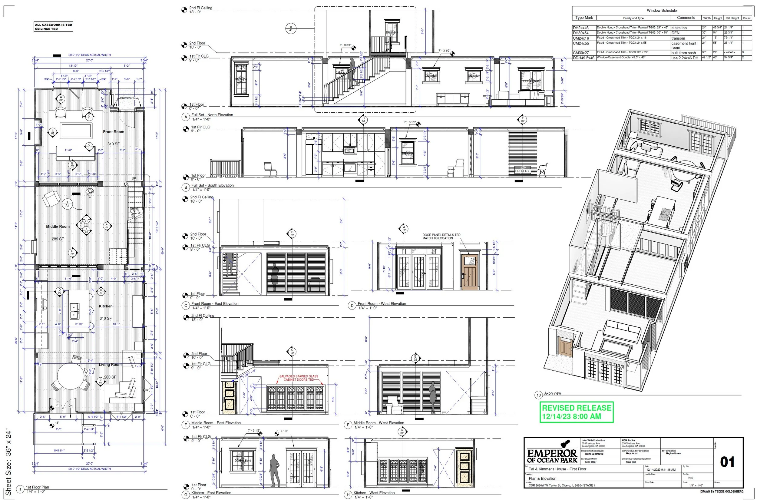
The idea for this house in Bronzeville, Chicago was that of a recent rehab that retains some of the characteristic Craftsman-style details, scattered throughout. To this end we have the typical window and door casing details, salvaged leaded-glass cabinet windows turned into a wall, and some original additions like the slat wall and slat fireplace.

The set needed to match the front of a location exactly, as well, replicating the front door and windows.
Production Designer Halina Gebarowicz fully designed the layout of the house, so much of my work was concerning the details, and getting them exactly right.
